고령 인구의 증가 등으로 지방에 세컨드 하우스를 생각하는 사람들이 늘고 있습니다. 농촌 인구 감소 대책에 골머리를 앓고 있는 지자체들도 이런 인구를 끌어들이기 위해 빈집 임대 등에 적극적입니다. 빈집을 리모델링하거나 농막을 새로 지어 시골 생활을 하는데 도움이 될 간단하면서도 쓸모 있는 6~10평 정도의 작은 집 디자인을 소개합니다.
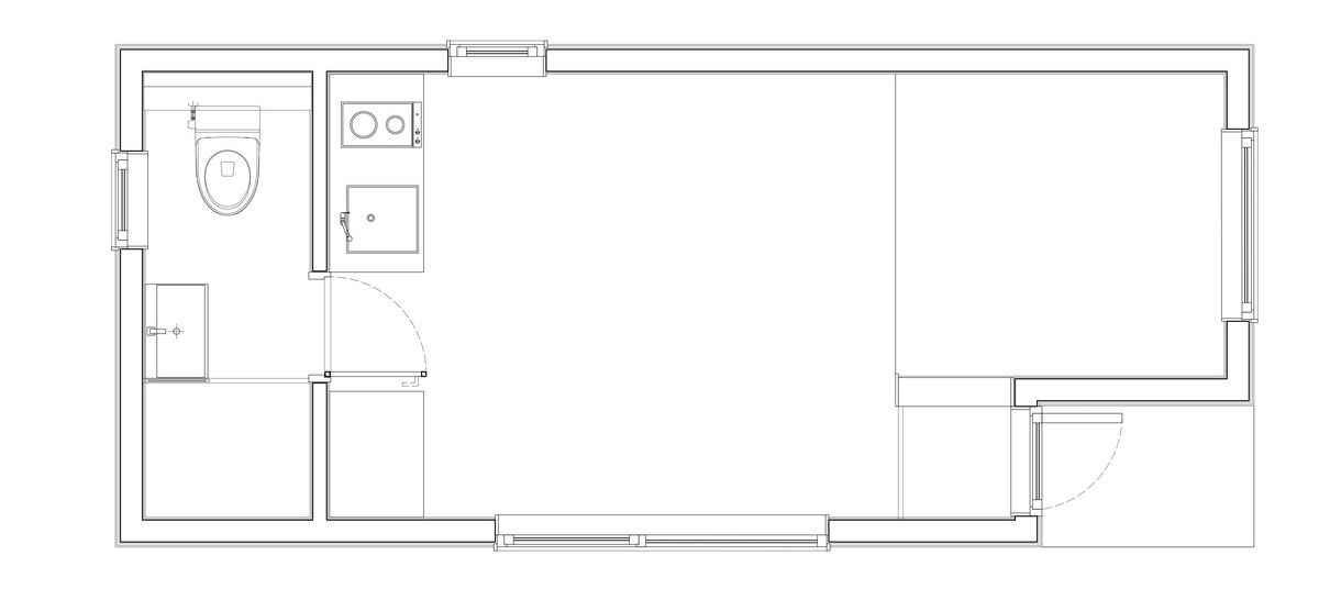
①아인스홈의 표준형 농막 설계


건축회사인 아인스홈이 블로그에 공개한 설계도로 6평 농막 설계도로 가장 흔하게 볼 수 있는 디자인입니다. 욕실과 주방 위로 다락이 있어 침실 공간으로 쓸 수 있습니다. 해당 블로그(https://m.blog.naver.com/einshaven/222066631420)에서 더 자세한 내용을 볼 수 있습니다.
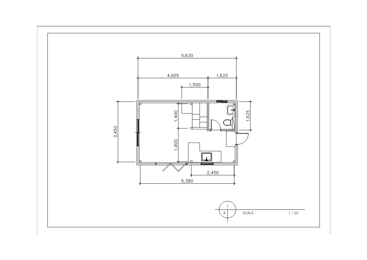
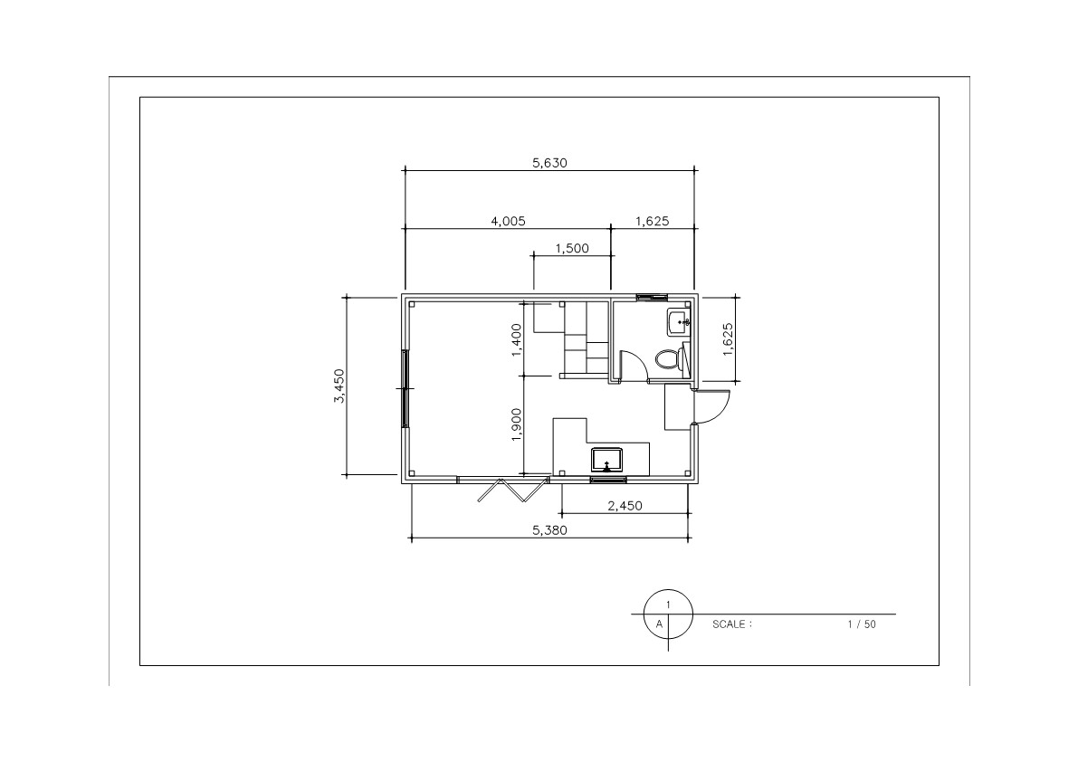
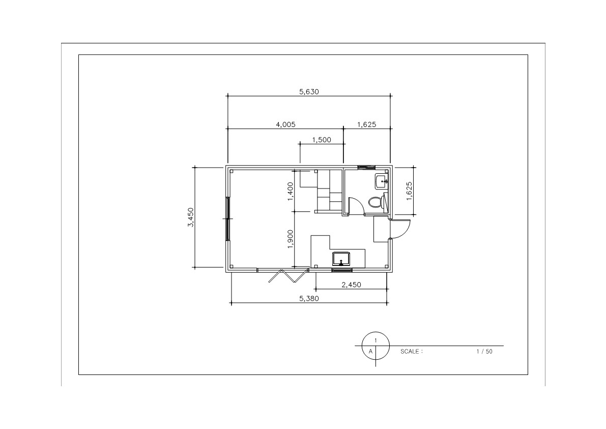
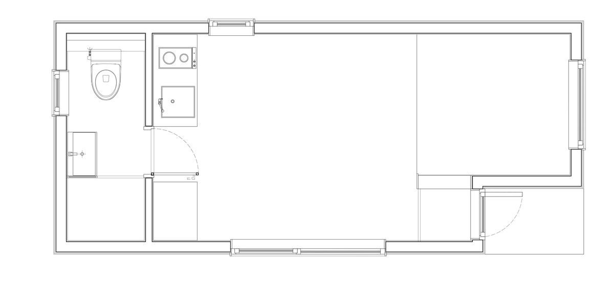
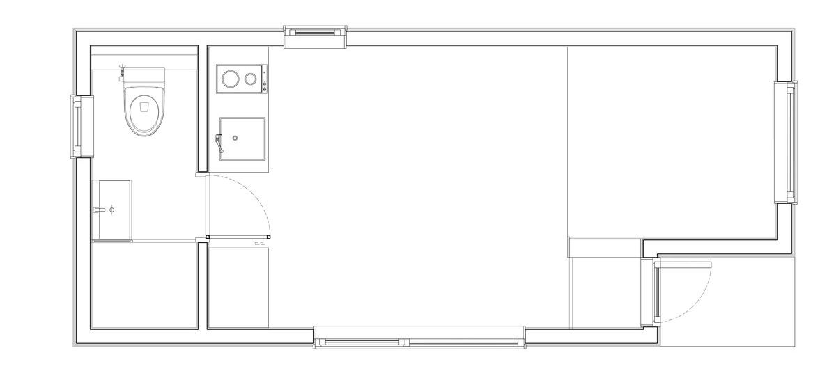
②한국패시브건축협회 표준주택 설계

사단법인 한국패시브건축협회가 주문 받아 판매하고 있는 6평 주택 설계도면(https://www.phiko.kr/bbs/board.php?bo_table=z11_01&wr_id=316&sst=wr_datetime&sod=asc&sop=and&page=1)입니다. 역시 농막에서 매우 흔하게 보는 기본형 설계입니다. 아인스홈 설계와는 욕실과 주방 배치가 다릅니다. 층고를 높여 다락을 만들면 실내 공간이 더 여유 있어집니다.
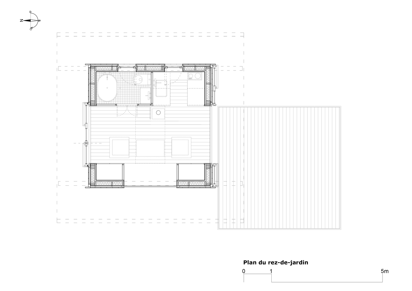
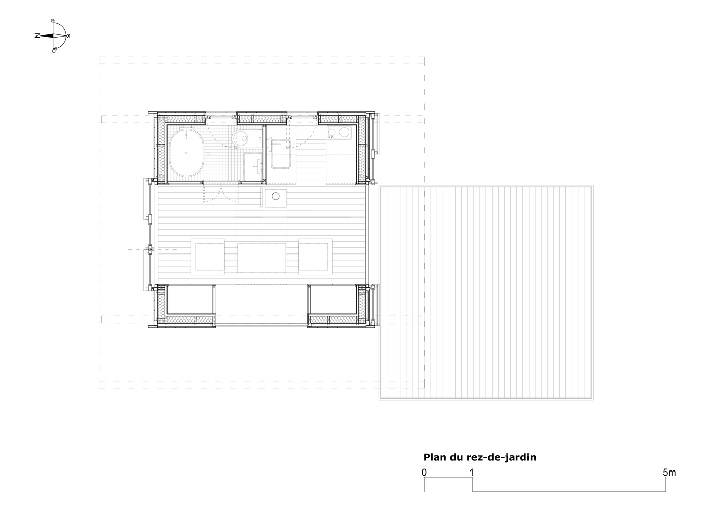
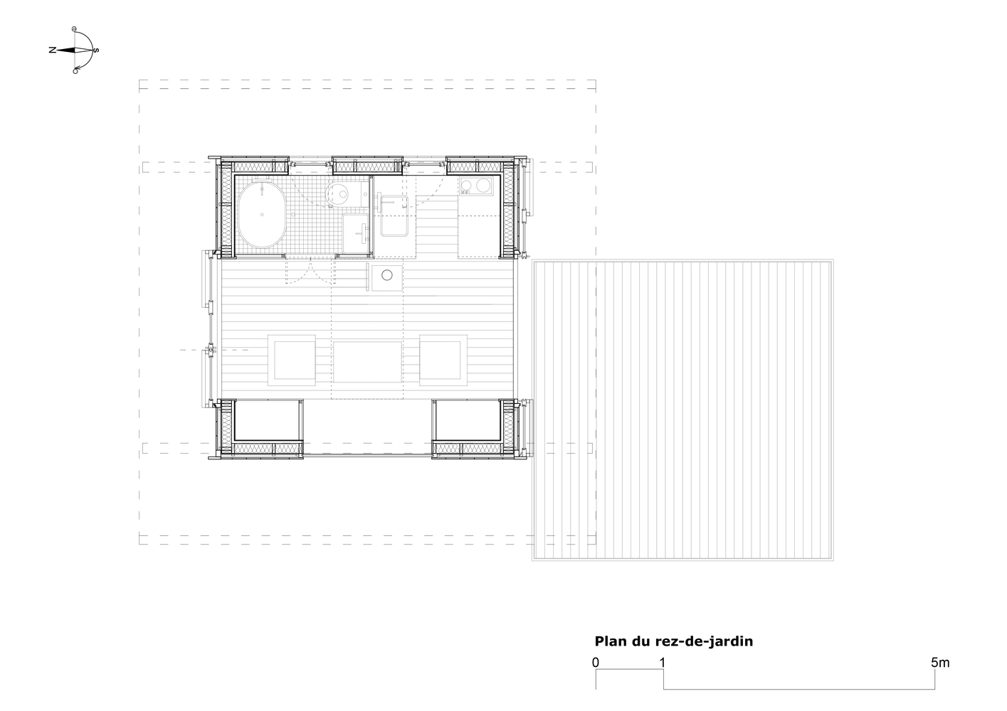
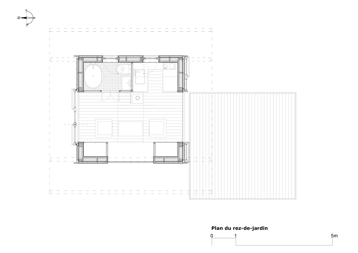
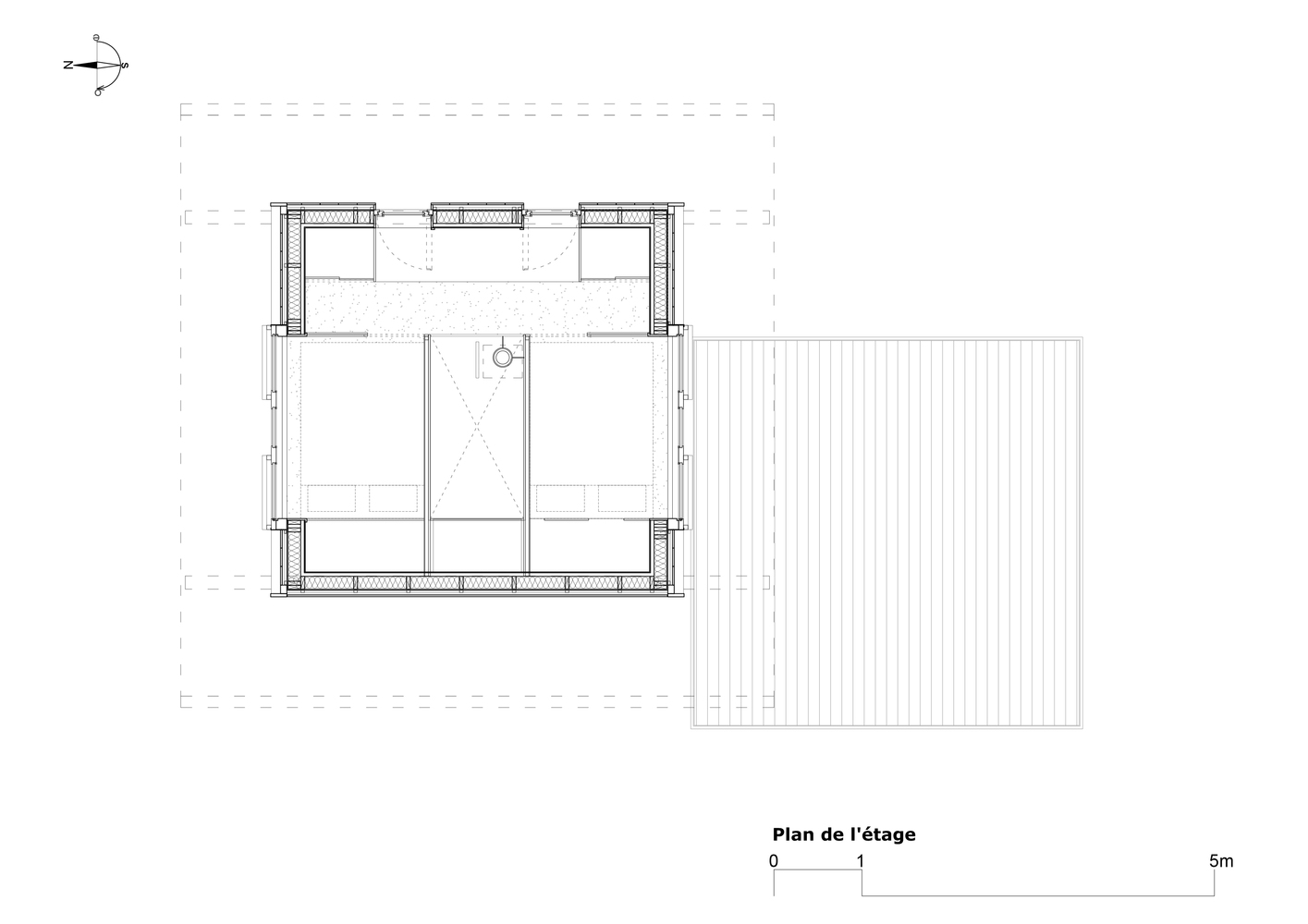
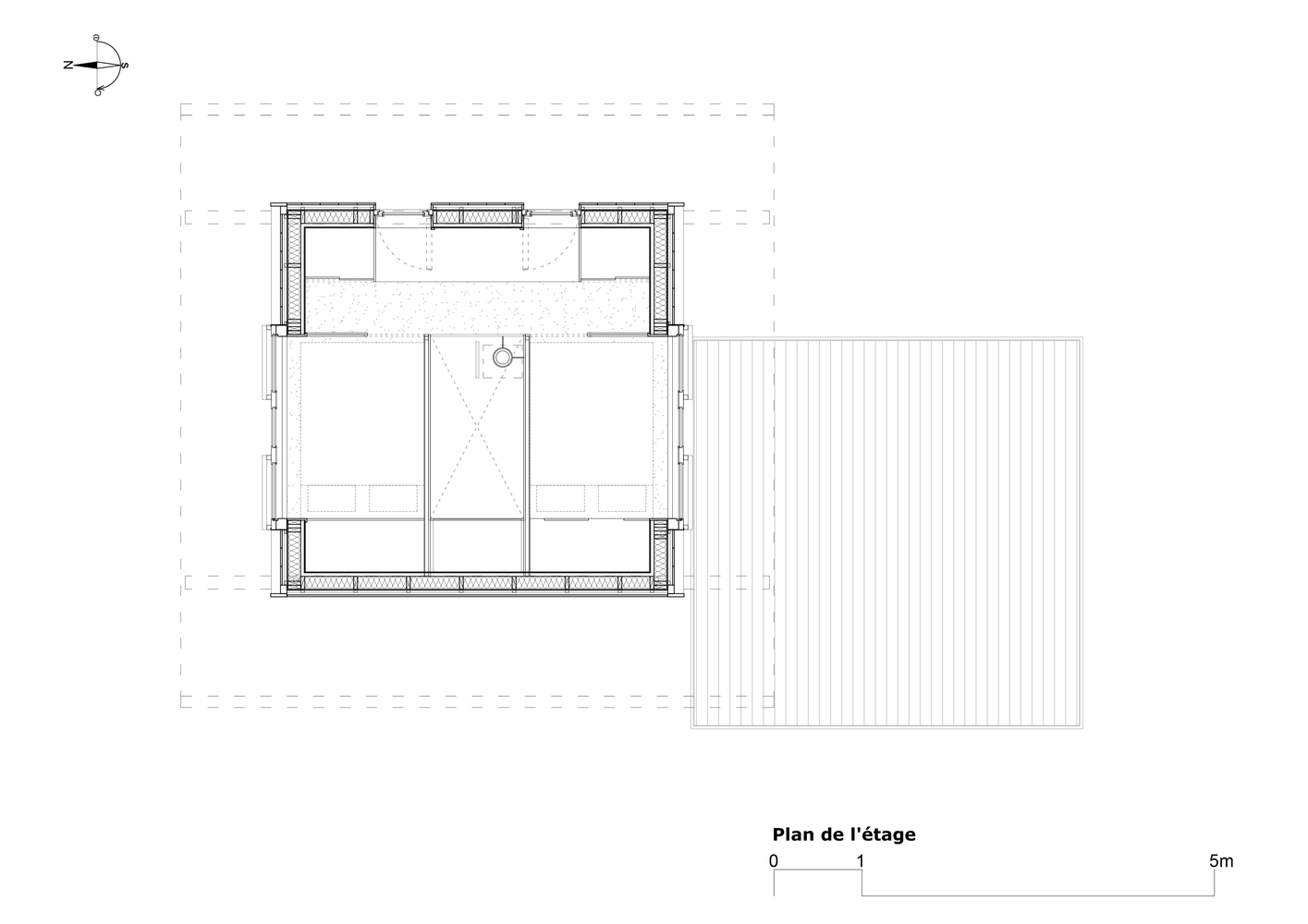
③프랑스 농막


건축 관련 콘텐츠를 전하는 인터넷사이트 '아크데일리'(ArchDaily)에 소개된 프랑스 농막입니다.(https://www.archdaily.com/942465/la-petite-maison-arba?ad_medium=widget&ad_name=category-houses-article-show)
건축 바닥면적이 6평이라는 게 믿기지 않을 정도로 잘 정돈되고 효율적인 구조입니다. 다락의 침대 공간을 마치 방 2개를 둔 것처럼 분리해 4명이 잘 수 있도록 했습니다.
④뉴질랜드 농막



작은집을 소개하는 인터넷 사이트 겸 유튜브 채널 'Living Big in a Tiny House'에 소개된 농막입니다.(www.livingbiginatinyhouse.com/episodes/stunning-modern-minimalist-tiny-house) 군더더기 없이 심플한 디자인이 매력적입니다.
⑤미국 농막




미국 주택회사인 하이애더스 홈스(Hiatus Homes)에서 만든 11평 짜리 농막으로 단지 형태로 설계해 분양했다고 합니다.(https://www.hiatushomes.com/benham) 작은집 치고는 여유 있는 평수인데다 효율적으로 설계해 3인 가족이 지내기에도 불편함이 없어보입니다.