반응형
*세컨드하우스를 계획하는 분들에게 설계 아이디어를 제공하기 위해서 쓴 글입니다.
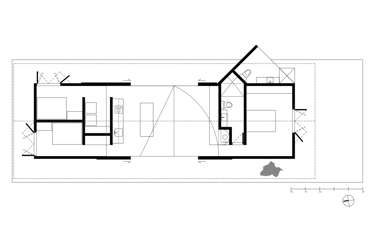
건축 전문 사이트 아크데일리에 소개(www.archdaily.com/1013727/spring-house-ma-sa?ad_source=search&ad_medium=projects_tab)된 콜롬비아의 약 26평 단층집입니다. 주방과 거실을 가운데 두고 양쪽에 모두 침실 3개가 있는 구성입니다. 국내의 경우 단열 보강이 필요할 것으로 보이지만 개방감이 돋보여 농촌 빈집 개조나 세컨드 하우스 용으로 안성맞춤인 듯 합니다. 외부 화장실과 세면대를 공간을 최적화해 별도로 구성한 것이 인상적입니다. 기사에 포함된 설계 이미지와 실제 집 사진 일부를 소개합니다.




반응형