반응형
*세컨드하우스를 계획하는 분들에게 설계 아이디어를 제공하기 위해서 쓴 글입니다.
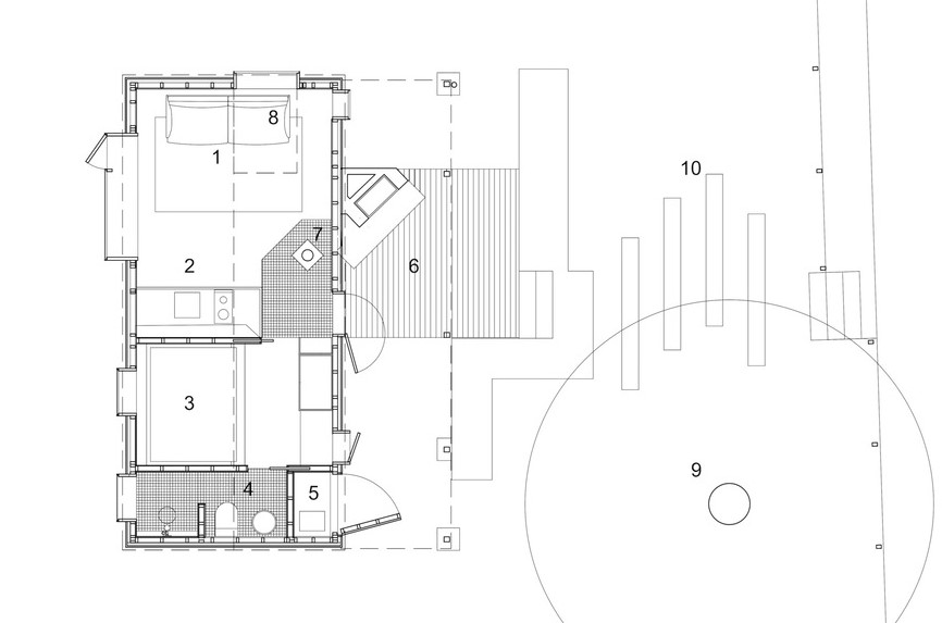
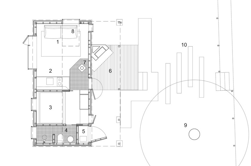
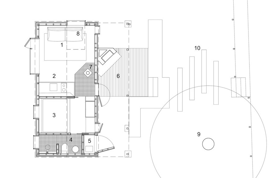
건축 전문 인터넷사이트 아크데일리(archdaily)에서 소개한 8.5평 호주의 농막(https://www.archdaily.com/993554/little-black-cabin-smith-architects?ad_source=search&ad_medium=projects_tab)입니다. 넓지 않은 공간이지만 거실과 부엌, 침실, 화장실 및 욕실의 3가지 공간이 잘 구조화되어 있어 2인 정도가 쓰기에 불편함이 없어 보입니다. 건물과 일체로 만든 야외 난로는 농막을 고급스럽게 보이도록 합니다. 세탁실을 별도로 두고 외부에 배치한 것은 겨울철 동결 등을 고려하면 한국의 일반적인 실정에는 맞지 않아 보입니다. SMITH Arhitects AU에서 설계했고 사진은 클린턴 위버(Clinton Weaver)가 찍었습니다.





반응형